Проекты кирпичных домов

Проекты домов из пеноблоков и пенобетона

Проекты деревянных домов

Проекты каркасных домов

Каталог проектов:



    Проект кирпичного дома из теплой керамики № R-166-1K

    общая площадь: 166 м2

    Проект кирпичного дома из теплой керамики № R-166-1K

    Описание проекта

    Описания нет.


    Материалы для строительства:

    Фундамент – монолитная ж/б плита
    Наружные стены – кирпич
    Перекрытия – монолитная ж/б
    Тип кровли – чердачная
    Покрытие кровли – мягкая черепица
    Наружная отделка – штукатурка,окраска
    Наружная отделка цоколя – искусственный камень

    Акции на проект (актуально на 11.04.2026):

    Доработка проекта

    В данный проект возможно внести изменения.
    Также читайте статью: внесение изменений в типовой проект.

    Бесплатная доставка проекта

    На этот проект предусмотрена бесплатная доставка (только на территории РФ).


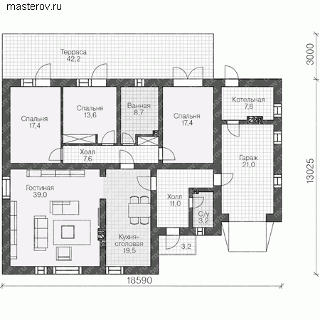
    Поэтажные планы

    1-й этажредактировать
    Проект кирпичного дома из теплой керамики № R-166-1K - 1-й этаж

    Фасады

    вид спереди
    Проект кирпичного дома из теплой керамики № R-166-1K - вид спереди
    вид слева
    Проект кирпичного дома из теплой керамики № R-166-1K - вид слева
    вид справа
    Проект кирпичного дома из теплой керамики № R-166-1K - вид справа
    вид сзади
    Проект кирпичного дома из теплой керамики № R-166-1K - вид сзади


    Цена проекта дома

    Комплектация:Цена (руб):
    Архитектурно-строительные чертежи [ что входит Минимальный комплект поставки.
    Архитектурно-строительная часть чертежей включают в себя:


    Архитектурный раздел:

    - общие данные по проекту,
    - поэтажные планы,
    - фасады,
    - основные разрезы по дому,
    - спецификации оконных и дверных проемов,
    - спецификации перемычек.

    Конструкторский раздел:

    - планы фундаментов,
    - планы перекрытий этажей,
    - планы стропил,
    - основные конструктивные узлы,
    - спецификации на материалы.
    ]
    36 000
    Доп. комплект чертежей без лицензии (копия для строителей) ** [ что входит Доп. комплект чертежей без лицензии (копия для строителей) включает в себя:

    - дополнительный комплект чертежей для строителей без лицензии.
    ]
    2 000
    Паспорт проекта ** [ что входит Паспорт проекта - это выдержка из архитектурного раздела проекта, включает в себя:

    - общие данные по проекту,
    - поэтажные планы,
    - фасады,
    - основные разрезы по дому.

    Паспорт может потребоваться при согласовании проекта в местной архитектуре.
    ]
    5 000
    Дополнительные услуги:Цена (руб):
    Добавить гараж (цена от) 20 000
    Изменение типа перекрытий (цена от) 15 000
    Изменение типа фундамента (цена от) 15 000

    (**) Паспорт проекта и Доп. комплект чертежей без лицензии (копия для строителей) отдельно от основного комплекта не продаются.




    Форум по проекту № R-166-1K


    Для добавления комментария пожалуйста зарегистрируйтесь или войдите в систему.

    Всю ответственность за размещаемые материалы и содержащиеся в них сведения несут их авторы.

    Главная | Каталог проектов | Фото домов | Контакты

    Rambler's Top100
    Проекты загородных домов и коттеджей
    ©2026 Masterov.Ru